Home / Benitachell / Villa in Benitachell
Villa in Benitachell
SV5420
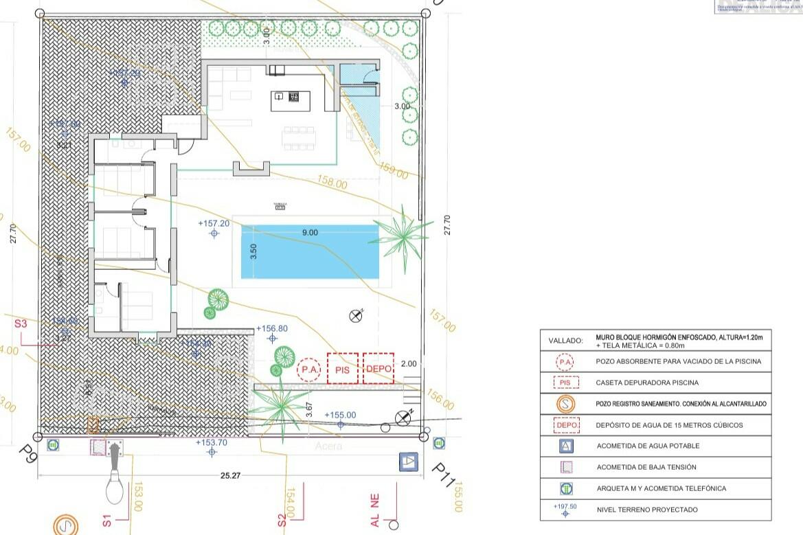
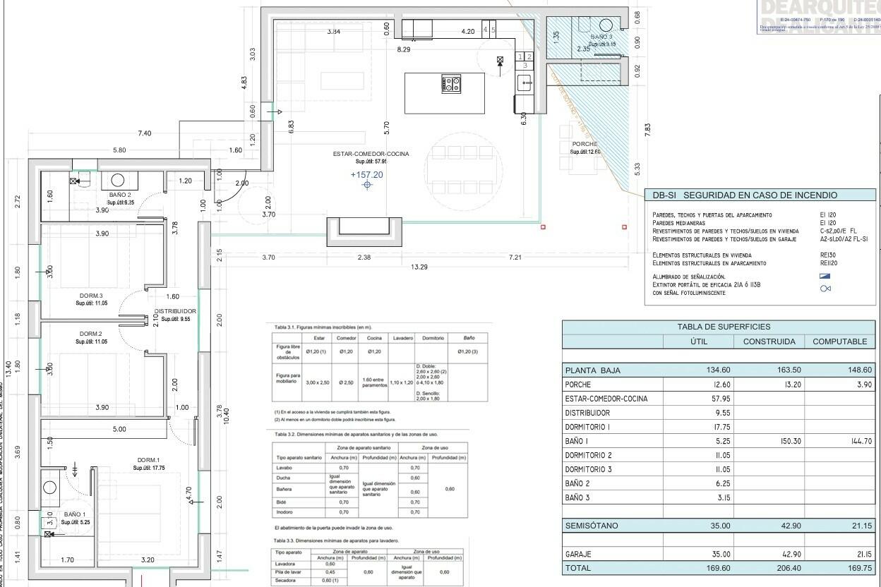
Villa
Benitachell
3
3
206m2
689m2














