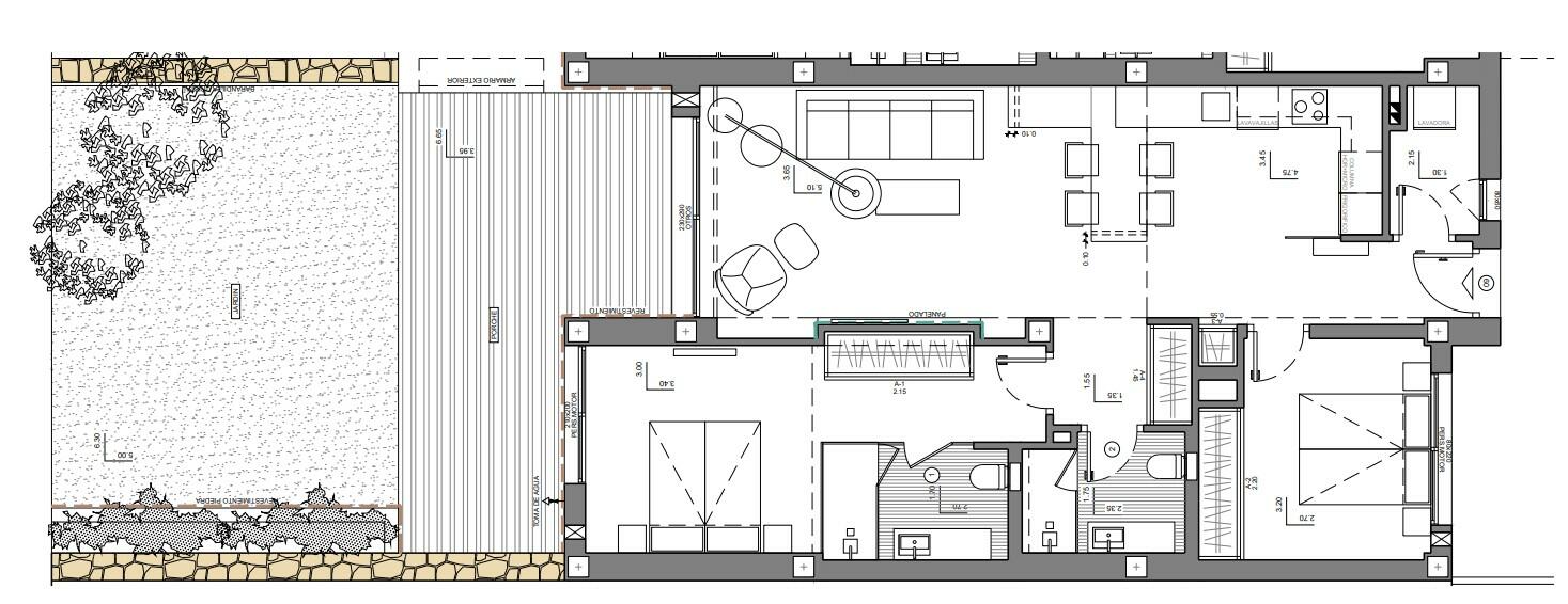
Home / Benitachell / Apartment in Benitachell
Apartment in Benitachell
SV5171
Apartment
Benitachell
2
2
148m2







































