Home / Benitachell / Villa in Benitachell
Villa in Benitachell
SV3772
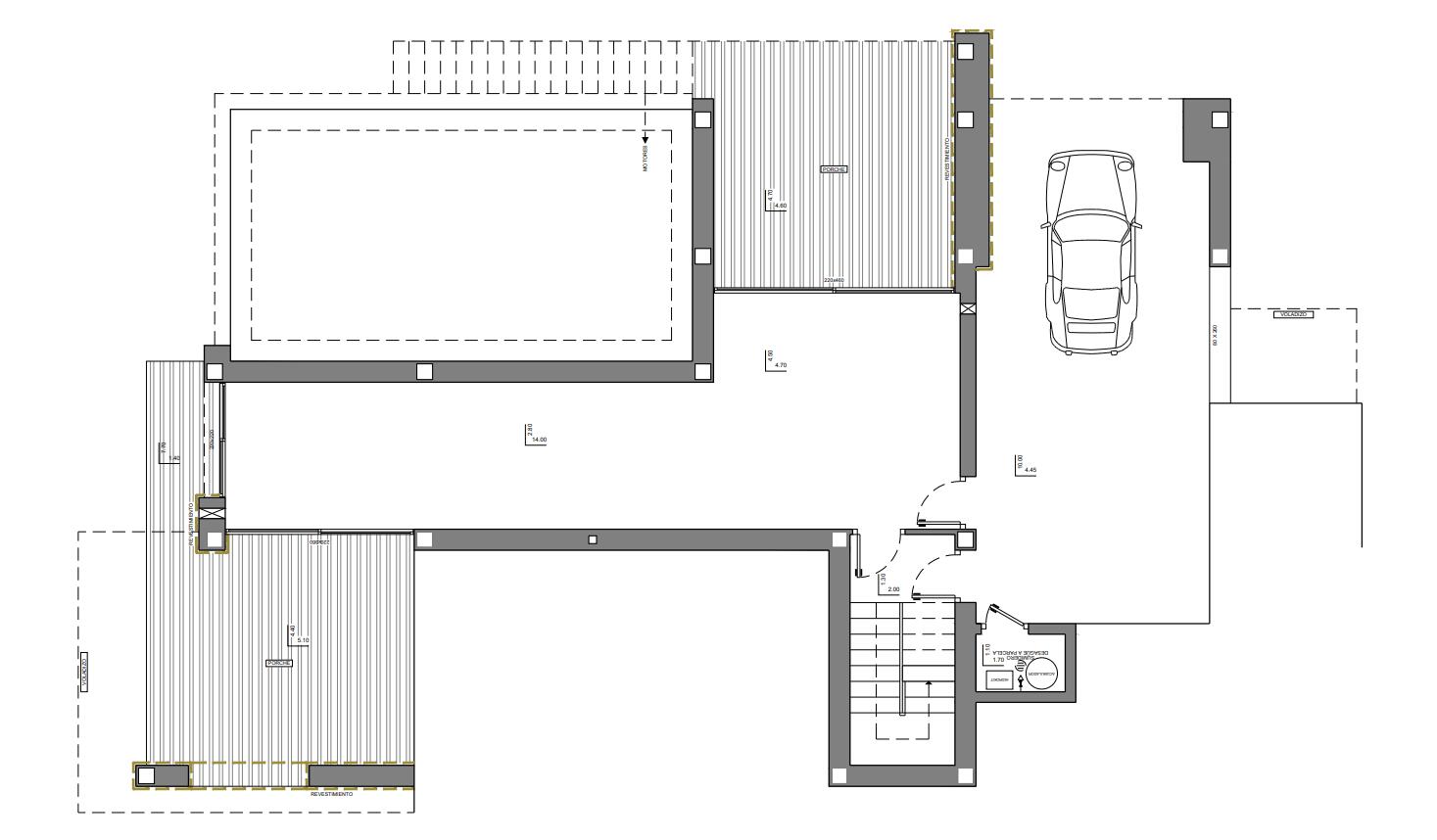
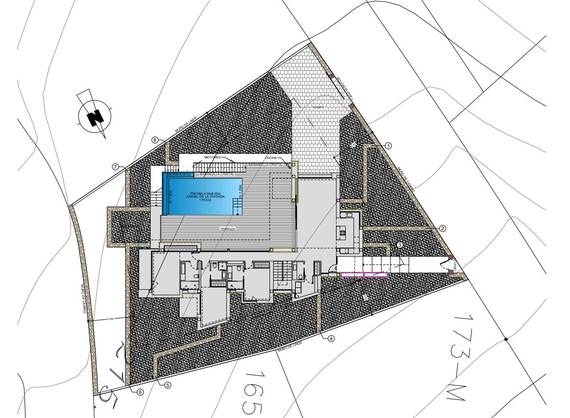
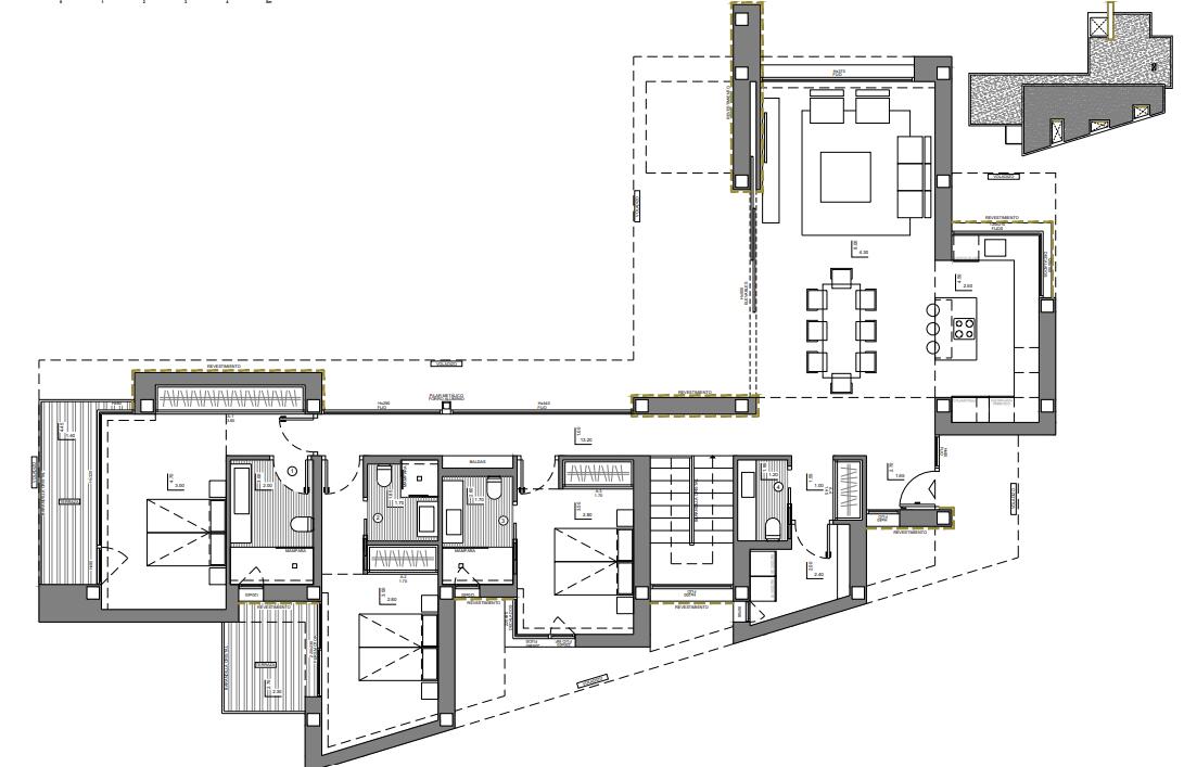
Villa
Benitachell
3
4
615m2
951m2











