Home / Jávea/Xàbia / Villa in Jávea/Xàbia
Villa in Jávea/Xàbia
SV3609
Villa
Jávea/Xàbia
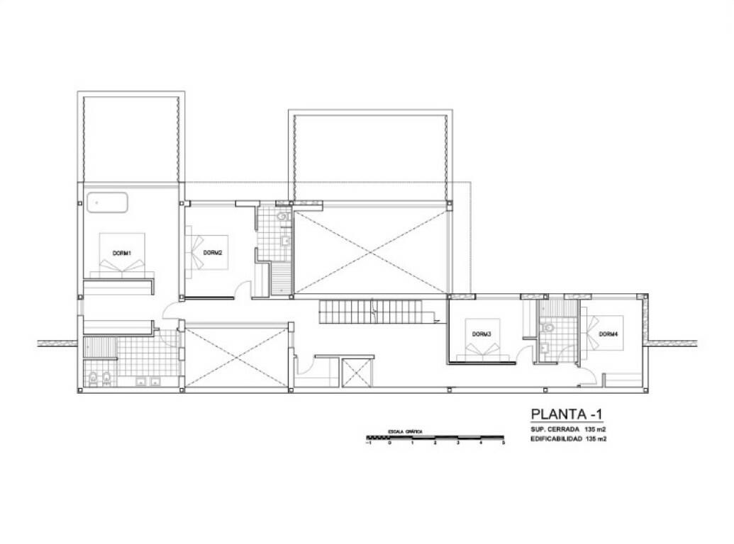
4
3
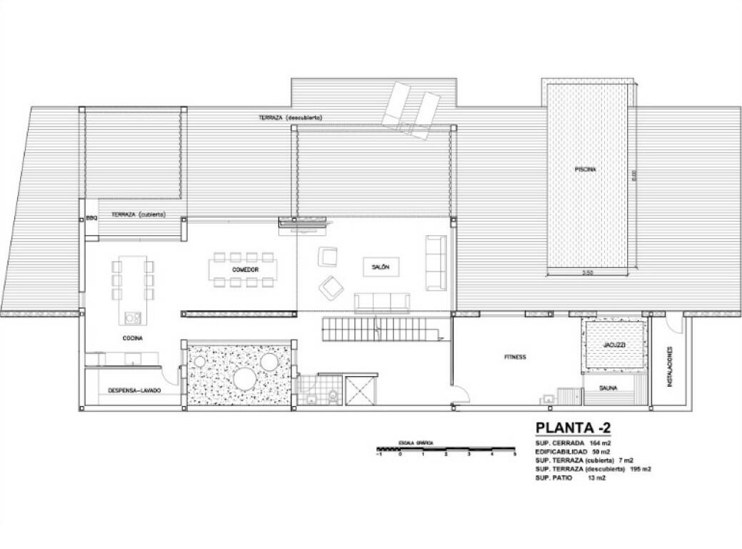
319m2
1003m2











