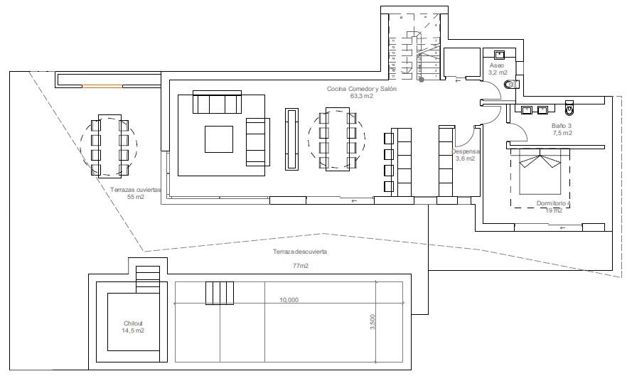
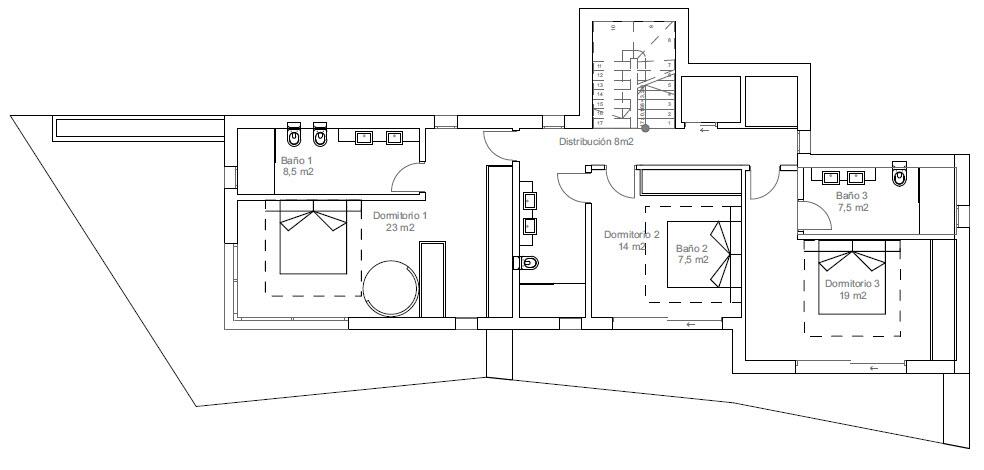
Home / Jávea/Xàbia / Villa in Jávea/Xàbia
Villa in Jávea/Xàbia
SV3350
Villa
Jávea/Xàbia
4
4
230m2
1500m2













